Indulge in the epitome of refined living with this spacious fully furnished 4 bedroom executive residence in the prestigious suburb of Braddon on the City’s edge. Immerse yourself in the sophistication of a meticulously designed property that seamlessly combines elegance with functionality.
This home set at the quiet end of Braddon amongst lush private gardens is the perfect family home. The home boasts all the comforts of modern living, with a lovely garden without the maintenance of a large suburban block. Featuring an upgraded kitchen fitted out with European appliances, exudes warmth and character and is a point of difference from the usual white and grey in recent developments.
Spend a chilled out afternoon baking or cooking up your favourite Sunday feast. Relax on the sun filled patio amongst mature trees or take a stroll down to vibrant Braddon for an array of choices to keep any foodie happy. No need for an Uber, just a short walk to the City’s finest restaurants or spend a relaxed Friday night at Edgars, this home is perfectly situated.
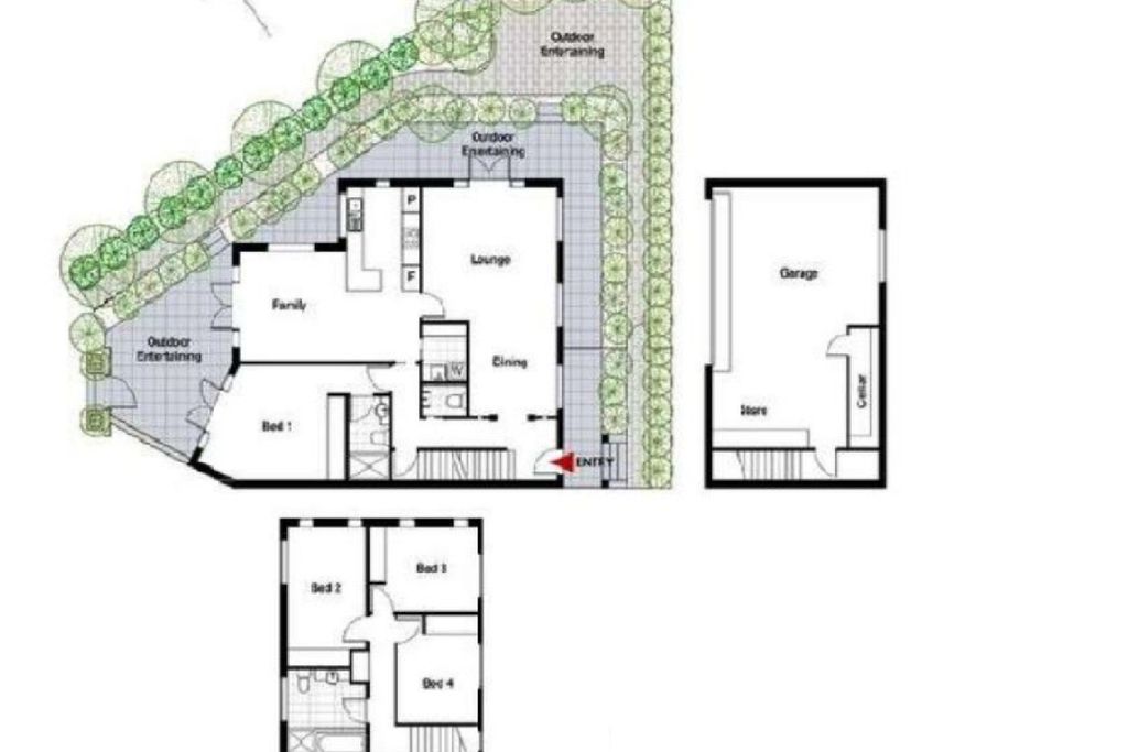
All four bedrooms are doubles with built in robes, the master is located on the ground level with recently updated ensuite. Entertainers will love the full size dining room, with adjoining lounge room that allows you to enjoy large family gatherings, whilst the open plan kitchen and living room streams sun through the double French doors and takes you out to one of three patios.
Situated in the heart of Braddon, this fully furnished executive townhouse offers unparalleled convenience. Revel in the prestige of this sought-after location, where tranquillity meets City sophistication. Secure your place in this exclusive address and elevate your lifestyle in Braddon.
This exceptional property comes fully furnished with all utensils, cutlery and appliances as photographed.
They say home is where the heart is ... and this home has plenty of room for yours!
Located in a small boutique complex surrounded by well-maintained community gardens. This property won't last long.
Features:
• Internal access to secure double garage with remote entry;
• Ducted heating and cooling
• Large open plan kitchen and living area with butler's pantry style storage
• 900mm Smeg oven and rangehood
• Bosch dishwasher
• German made granite kitchen and laundry sinks with brushed copper tapware
• North facing living area
• Built-in robes in all bedrooms
• Bamboo flooring throughout ground floor
• Segregated large master bedroom on ground floor with ensuite
• Downstairs powder room
• Large family bathroom with spa bath
• Quality window fittings including top down/bottom up honeycomb blinds provide
• Privacy whilst allowing full sun
• Private sun-soaked patio with Sintesi remotely retractable cover
• Beautifully designed fully irrigated gardens with mature trees
• Short walking distance to the light rail, Haig Park, Lonsdale Street and Ainslie shops
• Available mid-March 2026
Don't delay, call now to arrange an inspection.
.
.
Rental enquiries contact: Paul Sutton 0407 099 175
Email: [email protected]
Online Applications are available online through the Ignite platform. Please use the APPLY tab on the realestate.com.au site on the property's rental listing.
We need one application form per adult over the age of 18 that will be living in the property.
Pets: Tenants must seek the Landlord’s consent for a pet.
EER: 6 This property complies with the minimum ceiling insulation standard.
Rent is paid calendar monthly
Applicants or a representative on their behalf must inspect the property
Disclaimer:
Please note that while all care has been taken regarding general information and marketing information compiled for this rental advertisement, Paul & Robyn Sutton Properties does not accept responsibility and disclaim all liabilities in regard to any errors or inaccuracies contained herein. We encourage prospective tenants to rely on their own investigation and in-person inspections to ensure this property meets their individual needs and circumstances.
Features
- Ducted Cooling
- Ducted Heating
- Gas Heating
- Courtyard
- Broadband Internet Available
- Built-in Wardrobes
- Dishwasher























































